REQUEST A TOUR If you would like to see this home without being there in person, select the "Virtual Tour" option and your agent will contact you to discuss available opportunities.
In-PersonVirtual Tour

$ 999,000
Est. payment /mo
Active
4763 Algiers Street #100 Dallas, TX 75207
3,049 Sqft Lot
UPDATED:
Key Details
Property Type Commercial
Sub Type Office
Listing Status Active
Purchase Type For Sale
Subdivision Hampton & Industrial
MLS Listing ID 21133368
Total Fin. Sqft 2880
Year Built 2024
Annual Tax Amount $17,701
Lot Size 3,049 Sqft
Acres 0.07
Property Sub-Type Office
Property Description
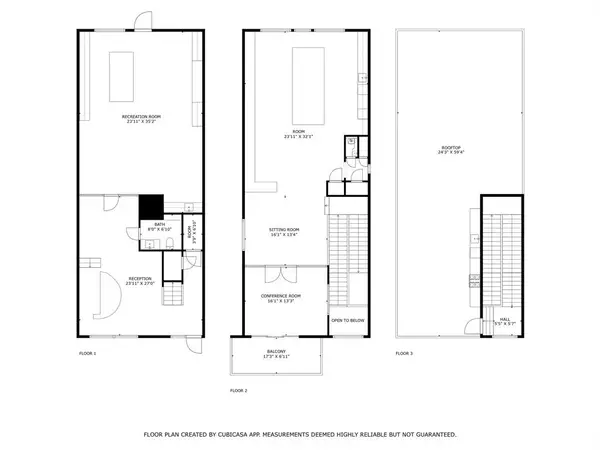
Medical district Office Showroom space available fully furnished and turnkey ready. Recently finished out. 3 story with rooftop deck. 1st floor has large reception area and bathroom leading to shared office space, wet bar, massive island or desk space with high end cabinetry and hardware and media setup. 2nd floor has a conference room with walk out balcony, landing area, large, shared desk area decked out for 15-20 people comfortably and a nicely appointed kitchenette. 3rd floor has full open air rooftop deck with outdoor kitchen.
Location
State TX
County Dallas
Zoning commercial industrial research district per CAD
Direction GPS
Interior
Heating Central
Cooling Central Air
Flooring Wood
Heat Source Central
Exterior
Utilities Available City Sewer, City Water
Roof Type Flat
Garage No
Building
Foundation Slab
Structure Type Concrete,Siding
Others
Acceptable Financing 1031 Exchange, Cash, Conventional
Listing Terms 1031 Exchange, Cash, Conventional
Virtual Tour https://www.propertypanorama.com/instaview/ntreis/21133368

©2026 North Texas Real Estate Information Systems.
Listed by Ty Vaughn • Robert Elliott and Associates





